Property
256,558 €
OKAZION! Apartament 2+1 me oborr për Shitje tek Square Village, Dhërmi!
Village Square, Dhërmi Vlorë, Albania
Reference: OZON5848
✦ DETAJET E PRONËS:
─────────────
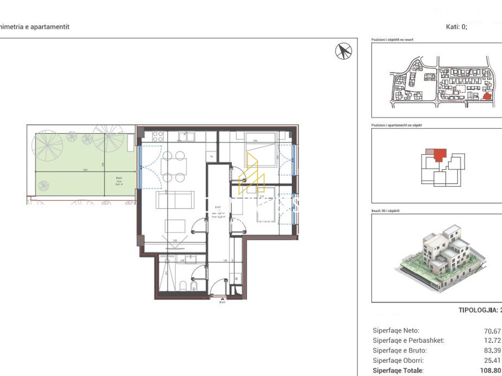
• Tipologji: 2+1 me oborr
• Sipërfaqe neto: 70.67 m²
• Sipërfaqe bruto: 83.39 m²
• Sipërfaqe oborri: 25.41 m²
• Sipërfaqe totale: 108.80 m²
• Rezidenca: Village Square, Dhërmi
• Kati: 0
✦ ORGANIZIMI I BRENDSHËM:
──────────────────
• 1 sallon ndenjeje me kuzhinë të përfshirë
• 2 dhoma gjumi
• 1 tualet me akses nga korridori shpërndarës
• Oborr privat me akses direkt nga salloni
✦ KARAKTERISTIKAT:
────────────
I përshtatshëm për:
• Investim me kthim të lartë, si për qira sezonale ashtu edhe afatshkurtër
• Ndodhet në ndërtim
• Kompleks rezidencial me arkitekturë tradicionale mesdhetare
• Cilësi e lartë ndërtimi dhe finiturash moderne
✦ ZONA:
────
• Village Square, një nga komplekset më tërheqëse dhe tërësisht të integruara në zemër të Dhërmiut
• Akses i menjëhershëm në:
– Plazhet e bukura të Dhërmiut
– Restorante, bare, boutique-hotele dhe shërbime turistike
– Ambient i qetë, me atmosferë relaksuese bregdetare
✦ ÇMIMI:
────
• Totali: 256,558 €
Information
Features
- Lift
- CountrySide
- Bus Station
- Garden
