Prona
513,240 €
Apartament 2+1+2 me verandë për shitje në Jale Bay Music Village
Vlorë, Albania
Referenca: OZON5981
✦ DETAJET E PRONËS:
─────────────
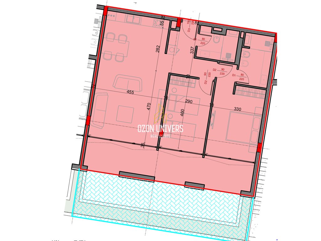
• Tipologji: 2+1+2
• Sipërfaqe Totale: 153.41 m²
• Verandë: 35.34 m²
• Rezidenca: Music Village, Jale Bay
• Adresë: Jalë, pranë bregdetit
• Statusi: Në ndërtim
✦ ORGANIZIMI:
──────────────────
• Sallon i gjerë me kuzhinë të integruar
• 2 dhoma gjumi
• 2 tualete
• Verandë e bollshme me pamje fantastike
• Korridor shpërndarës
✦ KARAKTERISTIKAT:
────────────
• I përshtatshëm për familje ose investim (Airbnb / afatgjatë)
• Planimetrie funksionale dhe ndriçim natyral
• Ndërtim modern me standarde të larta dhe arkitekturë bashkëkohore
• Afër detit dhe ambienteve rekreative të zonës së Jalës
✦ ZONA DHE REZIDENCA:
────
• Rezidenca Music Village ndodhet në një nga gjiret më të bukur të jugut të Shqipërisë — Jalë Bay, e njohur për ujin e kristaltë, rërën e imët dhe atmosferën verore unike.
• Zonë elitare turistike me potencial të lartë investimi dhe kthim të shpejtë të vlerës.
✦ ÇMIMI:
────
• €513,240
